площадью 1727,50 м2, по цене 600000000 по адресу Вернадского проспект - 92к1

Цена 600 000 000 р.
Район Тропарево-Никулино
Адрес Вернадского проспект, 92к1
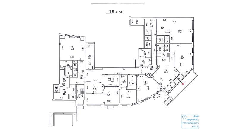
Площадь помещения 1727,5 м2
Предложение, на которое стоит обратить Ваше внимание! Прямая продажа от собственника! Офис расположен в элитном ЖК "Корона Эйр" и имеет отдельный вход не только в здание, но и на территорию ЖК. Двухэтажный офис общей площадью 1727,5 кв.м. Высота потолков на первом этаже 3,6 м, на втором 3,2 м. Помещение офиса оснащены всем необходимым для комфортной и полноценной работы руководителей и сотрудников (кабинеты руководителей, приемные, кабинеты сотрудников, зал совещаний, серверная, 8 уборных, кухня, комната приема пищи и т.д.). Установлена система видеонаблюдения, вентиляция, кондиционирование. Закрытая территория ЖК имеется две большие наземные парковки и подземный паркинг, а также имеет собственный зоопарк, парк и водоем. За офисом закреплено 10 машиномест на наземной парковке.
Объявление № 23462380
Дата подачи:
23 октября 2025 г. 3:34
Дата обновления:
22 октября 2025 г. 4:00
Просмотров 12 Хотите продать быстрее?

Продавец
Алексей
Показать номер телефона
Пожаловаться
Комментарии:
Добавить